Ismertető
Bicske egyik legszebb, 2018-ban épült családi házát kínáljuk eladásra, amely egy nyugodt mellékutcában található, mégis pár perc sétára van a városközponttól.
Az ingatlan kiváló állapotú, azonnal költözhető – Önnek már csak élveznie kell a kényelmet!
✅ Kiemelkedő adottságok:
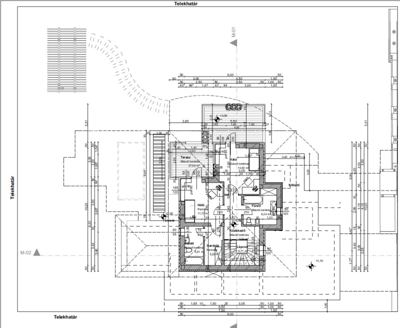
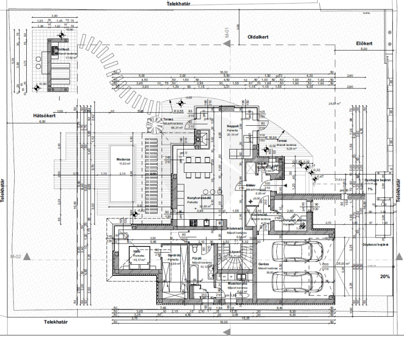
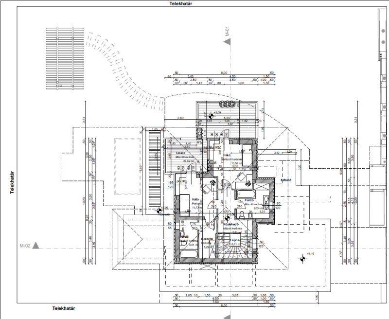
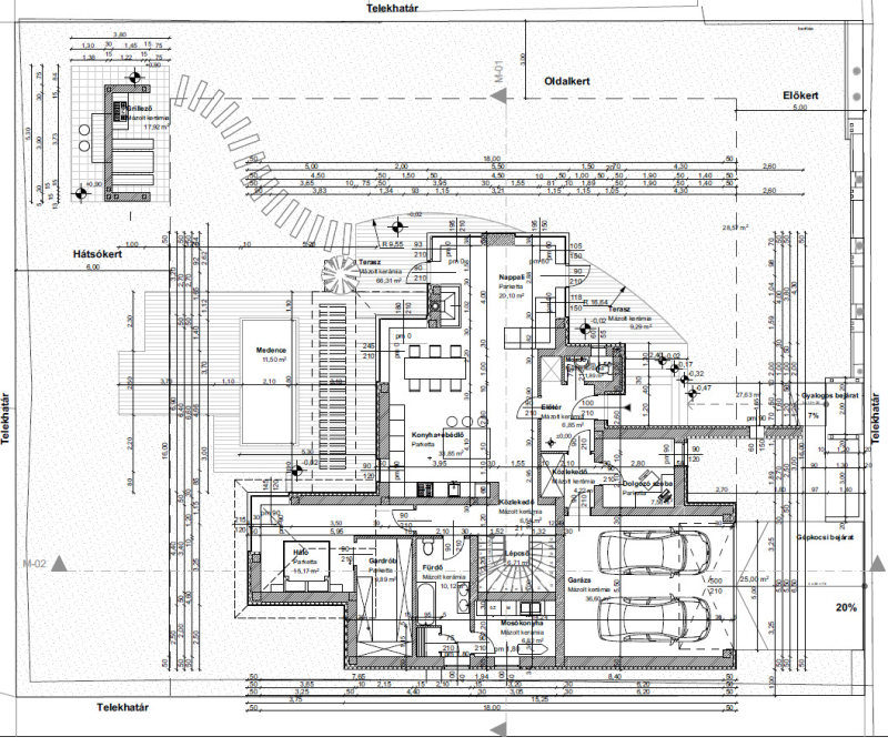
• Átgondolt, élhető alaprajz – ideális családok számára is
• Prémium minőségű burkolatok – mindenhol travertin kő került beépítésre
• Gondozott, intim kert – hangulatos kiülő, sütögető sarok, teljes nyugalom
• Modern műszaki tartalom – hosszú távon is fenntartható, energiatakarékos megoldások
Műszaki jellemzők:
• Porotherm 38-as tégla falazat, 10 cm XPS homlokzati szigeteléssel
• Aljzatszigetelés 8 cm, födémszigetelés 20 cm
• Padlófűtés kondenzációs gázkazánnal, plusz nappaliban hangulatos kandalló található
• 3 rétegű, 5 légkamrás nyílászárók elektromos redőnnyel
Ez a ház ideális választás mindazoknak, akik szeretnének egy gondosan megtervezett, magas műszaki színvonalú, mégis otthonos ingatlanba költözni, nyugodt környezetben, de jó megközelíthetőséggel.
Ne maradjon le róla – Bicskén ritkán elérhető ilyen színvonalú ingatlan!
Részletek
-
Építés éve:
2017 -
Szobák száma:
5 -
Állapot:
nincs adat -
Fűtés:
kazán -
Épület típusa:
családiház -
Terasz:
116 m2 -
Kilátás:
udvari -
Tájolás:
DK -
Telekméret:
867 m2 -
Övezet:
nincs adat -
Tetőtér:
nincs adat
