Ismertető
Családosok, egybeköltözők figyelem!
Egy igazán különleges lehetőség vár rád Tabajdon, Fejér vármegyében, ahol egy 4 éve épült lakóingatlan kínálja magát a jövőbeli otthonodnak.
Az ingatlan alsó szinten YTONG-ból és beton pincefalazóból, a felső szint fa könnyűszerkezetből épült, 10 cm grafitos homlokzati hőszigeteléssel, a műanyag nyílászárók 3 rétegű üvegezéssel, szúnyoghálóval.
A ház 270 nm, és egy 3383 négyzetméteres telken helyezkedik el, ami bőséges teret biztosít a gyerekeknek a szabadban való játékhoz, valamint a családi összejövetelekhez, kertészkedéshez. Ez az 5 szobás, 2 nappalis, 3 fürdőszobás ház újszerű állapotban várja új lakóit, így csak be kell költözni, és élvezni a kényelmet és a nyugalmat, amit ez a hely nyújt.
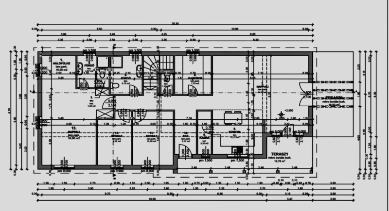
Alsó szint:
- Előszoba
- Nappali, konyha és étkező egy légtérben
- 2 kényelmes hálószoba
- Fürdőszoba WC-vel
- Kamra
Felső szint, akár külön bejárattal:
- Külön szoba hálószobával és fürdőszoba WC-vel
- 2 hálószoba
- Nappali, étkező egyben (konyha előkészítve)
- Fürdő és WC külön
- Gardrób
A fenti lakrészből juthatunk ki a teraszra, onnan a hatalmas kertbe, ahol élvezheted a szabadban töltött időt. A panorámás kilátás pedig csak fokozza a hely varázsát, hiszen a természet szépsége minden reggel új élményekkel ajándékoz meg.
A garázs két autó számára kényelmes parkolást biztosít, szekcionált elektromos garázskapuval.
A ház fűtése puffertartályos vegyestüzelésű kazánnal megoldott, padlófűtés és radiátoros hőleadókkal, a garázsban is, így a téli hónapokban sem kell aggódnod a magas rezsiköltségek miatt. A melegvizet elektromos bojler szolgáltatja, a kertben két lemez tároló is található. Az ingatlan bútorozottsága megegyezés szerint alakul, így lehetőséged van arra, hogy saját ízlésed szerint alakítsd ki az otthonod. Riasztórendszer előkészítve, gáz alapvezeték kiépítve a házig. A két szintet házon belüli lépcsőház köti össze, de kívülről is rendelkezik külön bejárattal a ház.
A falusi CSOK és CSOK Plusz kompatibilis ingatlan nemcsak a családi otthon megteremtésére ad lehetőséget, hanem befektetési célra is kiváló választás lehet, hiszen a környék fejlődése és a növekvő kereslet biztosítja a jó megtérülést.
A Váli völgy csodás természeti adottságainak köszönhetően, gyönyörű környezetben várja új lakóit ez a ház. A közlekedés szempontjából is kedvező helyen fekszik az ingatlan, hiszen Tabajd jól megközelíthető autóval és tömegközlekedéssel egyaránt, Budapest Kelenföld 35 perc autóval.
Iskola, óvoda, bölcsőde, háziorvosi rendelő és egyéb közösségi intézmények is megtalálhatók a településen.
Ha kérdéseid lennének, vagy szeretnéd megtekinteni ezt a kivételes ingatlant, ne habozz!
Bizalommal kereshetsz, és szívesen válaszolok minden felmerülő kérdésedre.
Az álomotthonod itt vár rád Tabajdon!
Részletek
-
Építés éve:
2021 -
Szobák száma:
7 -
Állapot:
nincs adat -
Fűtés:
egyéb -
Épület típusa:
családiház -
Kilátás:
panorámás -
Tájolás:
DNY -
Telekméret:
3383 m2 -
Övezet:
nincs adat -
Tetőtér:
nincs adat
